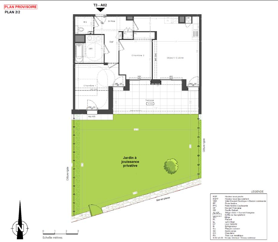
PROGRAMME NEUF Carnac – Appartement 3 pièces 63.53m2 + jardin de 76.28 m²

PROGRAMME NEUF Carnac – Appartement 3 pièces 63.53m2 + jardin de 76.28 m²

56340 Carnac

Vente

479 000 € HAI

  • 2282-26022026-014107
  • 2282-26022026-014107-1
  • 2282-26022026-014107-2
  • 2282-26022026-014107-3
  • 2282-26022026-014107-4
  • 2282-26022026-014107-5

Référence:

 2282

Chambre(s)
2
SDB/SDE
1
Stationnement(s)
1
Surface
63

Description

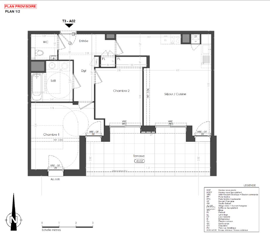
Programme neuf – Livré dans 1 mois – Visite possible
A 2 pas des commerces sur la route des plages, dans résidence intimiste
N°A01 : Appartement T3 de 63.5 m² rez chaussé avec terrasse exposée sud de 17.12m² et jardin en de 76.28m² orientation sud. Il offre une entrée avec placard, un séjour cuisine de 23.49 m² , 2 chambres avec accès jardin (13.5et 10.7m²) , une salle d’eau, WC séparé. un garage au sous-sol.
PRIX D’UN BIEN : 479 000 euros dont 3.00% d’honoraires charge vendeur
Contact : 02.97.52.05.77 – 06 78 69 68 90
Les livraison sont prévues pour Mars – Avril 2026 mais il est déjà possible de les visiter !
N’hésitez pas à nous contacter pour obtenir plus d’informations sur la résidence.
Les informations sur les risques auxquels ces bien sont exposés sont disponibles sur le site Géorisques : www.georisques.gouv.fr

Diagnostic de Performance Energétique

ConsommationNCkWh/m².an
EmissionsNCkgCO2/m².an
Logement très performant
A
B
C
D
E
F
G
Logement extrêmement consommateur d’énergie
EmissionsNCkgCO2/m².an
Peu d’émissions de CO2
A
B
C
D
E
F
G
Emissions de CO2 très importantes

Voir informations complémentaires

  • Code postal : 56340
  • Surface habitable (en m²) : 63.5
  • Nombre de chambres : 2
  • Nombre de pièces : 3
  • Nombre de niveaux : 2
  • Etage : RDC
  • Ascenseur : Oui
  • Nombre de salles d'eau : 1
  • Type de cuisine : aménagée
  • Type de stationnement : garage
  • Bien en copropriété : Non
  • Prix de vente honoraires TTC inclus (en euros) : 479000
  • Prix de vente honoraires TTC exclus (en euros) : 479000
  • Autre : Ascenseur -

Situer le bien

Propriétés similaires

Agence Des Druides Vente Maison Sur Carnac Icon Logo 1

Agence des Druides