Achat vente CARNAC entre bourg et plages, terrain à bâtir dans une résidence sécurisée

Achat vente CARNAC entre bourg et plages, terrain à bâtir dans une résidence sécurisée

Vente

551 113 € HAI

  • 2108-18-27092025-021637
  • 2108-18-27092025-021637-1
  • 2108-18-27092025-021637-2
  • 2108-18-27092025-021637-3
  • 2108-18-27092025-021637-4
  • 2108-18-27092025-021637-5
  • 2108-18-27092025-021637-6
  • 2108-18-27092025-021637-7
  • 2108-18-27092025-021637-8
  • 2108-18-27092025-021637-9
  • 2108-18-27092025-021637-10
  • 2108-18-27092025-021637-11

Référence:

 2108-18

Surface
533
Surface du terrain
533

Description

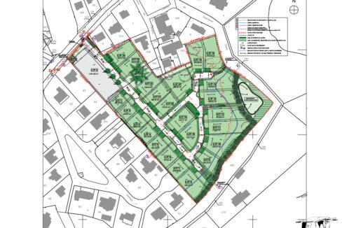
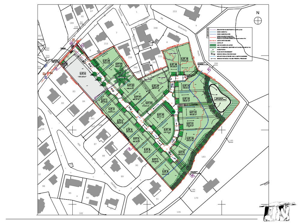
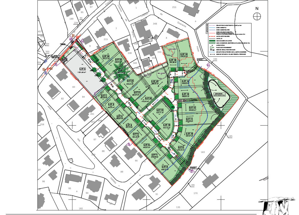
Carnac, dans résidence de standing, entre bourg et plages, superbe terrain à bâtir , d’une superficie de 533 m² avec une surface plancher possible de 135 m².
Au calme d’une résidence sécurisée de 24 lots, Le village des Mégalithes, venez bâtir la maison de vos rêves..
Prix : 551 113 euros HAI euros ( 538 000 euros net vendeur – Hono charge acquéreur : 2.5%)
Les informations sur les risques auxquels ce bien est exposé sont disponibles sur le site Géorisques : www.georisques.gouv.fr (2.44 % honoraires TTC à la charge de l’acquéreur.)

Diagnostic de Performance Energétique

ConsommationNCkWh/m².an
EmissionsNCkgCO2/m².an
Logement très performant
A
B
C
D
E
F
G
Logement extrêmement consommateur d’énergie
EmissionsNCkgCO2/m².an
Peu d’émissions de CO2
A
B
C
D
E
F
G
Emissions de CO2 très importantes

Voir informations complémentaires

  • Code postal : 56340
  • Surface terrain (en m²) : 533
  • Bien en copropriété : Non
  • Prix de vente honoraires TTC inclus (en euros) : 551113
  • Prix de vente honoraires TTC exclus (en euros) : 538000
  • Honoraires à la charge de l'acquéreur (en %) : 2.44
  • Autre :

Propriétés similaires

Agence Des Druides Vente Maison Sur Carnac Icon Logo 1

Agence des Druides