Achat vente  CARNAC entre bourg et plages, terrains à bâtir  à partir de 355 m² dans une résidence sécurisée

Achat vente CARNAC entre bourg et plages, terrains à bâtir à partir de 355 m² dans une résidence sécurisée

Vente

498 870 € HAI

  • 2204-3-27092025-021645
  • 2204-3-27092025-021645-1
  • 2204-3-27092025-021645-2
  • 2204-3-27092025-021645-3
  • 2204-3-27092025-021645-4
  • 2204-3-27092025-021645-5
  • 2204-3-27092025-021645-6
  • 2204-3-27092025-021645-7
  • 2204-3-27092025-021645-8
  • 2204-3-27092025-021645-9
  • 2204-3-27092025-021645-10
  • 2204-3-27092025-021645-11

Référence:

 2204-3

Surface
498
Surface du terrain
498

Description

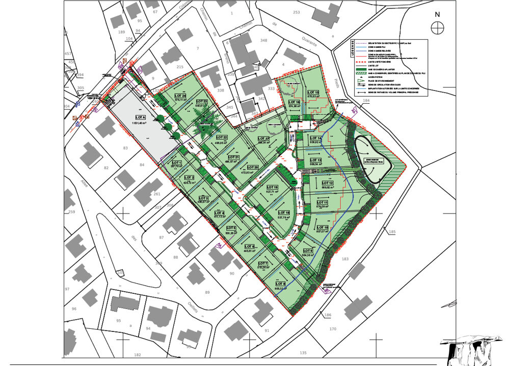
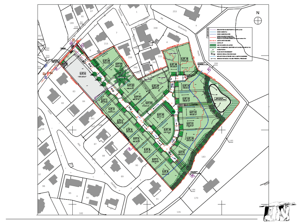
Carnac, entre bourg et plages, beau terrain viabilisé à bâtir dans un environnement calme, d’une superficie de 498 m² avec une surface plancher possible de 135 m².
Terrain situé dans une résidence sécurisée de 24 lots.

Prix : 498 870 euros HAI euros ( 487 000 euros net vendeur – Hono charge acquéreur : 2.5%)
Les informations sur les risques auxquels ce bien est exposé sont disponibles sur le site Géorisques : www.georisques.gouv.fr (2.44 % honoraires TTC à la charge de l’acquéreur.)

Diagnostic de Performance Energétique

ConsommationNCkWh/m².an
EmissionsNCkgCO2/m².an
Logement très performant
A
B
C
D
E
F
G
Logement extrêmement consommateur d’énergie
EmissionsNCkgCO2/m².an
Peu d’émissions de CO2
A
B
C
D
E
F
G
Emissions de CO2 très importantes

Voir informations complémentaires

  • Code postal : 56340
  • Surface terrain (en m²) : 498
  • Bien en copropriété : Non
  • Prix de vente honoraires TTC inclus (en euros) : 498870
  • Prix de vente honoraires TTC exclus (en euros) : 487000
  • Honoraires à la charge de l'acquéreur (en %) : 2.44
  • Autre :

Propriétés similaires

Agence Des Druides Vente Maison Sur Carnac Icon Logo 1

Agence des Druides