achat vente CARNAC entre bourg et plages, terrain constructible dans une résidence sécurisée

achat vente CARNAC entre bourg et plages, terrain constructible dans une résidence sécurisée

Vente

512 187 € HAI

  • 2207-5-27092025-021640
  • 2207-5-27092025-021640-1
  • 2207-5-27092025-021640-2
  • 2207-5-27092025-021640-3
  • 2207-5-27092025-021640-4
  • 2207-5-27092025-021640-5
  • 2207-5-27092025-021640-6
  • 2207-5-27092025-021640-7
  • 2207-5-27092025-021640-8
  • 2207-5-27092025-021640-9
  • 2207-5-27092025-021640-10
  • 2207-5-27092025-021640-11

Référence:

 2207-5

Surface
509
Surface du terrain
509

Description

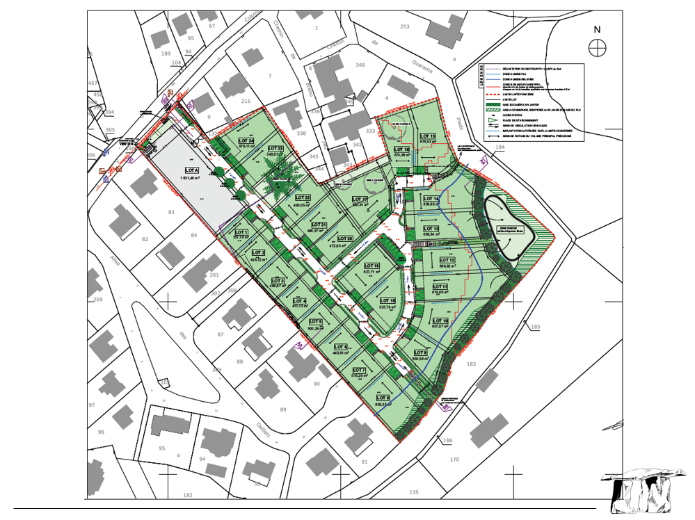
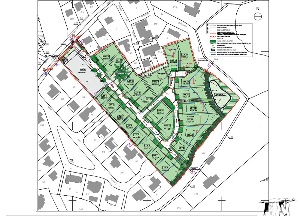
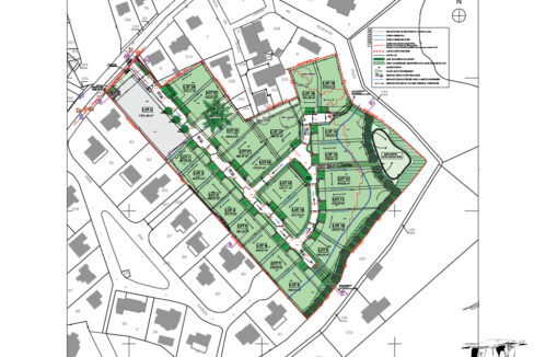
CARNAC très bien situé entre bourg et plages,
Superbe terrain viabilisé à bâtir dans un environnement calme et recherché.
D’une superficie de 509 m² vous pourrez réaliser la maison de vos rêves s’une surface plancher de 140 m² (hors garage cellier…).
Au coeur d’une résidence sécurisée de 24 lots, terrains libre de constructeur.

Livraison 06/2025 Contactez nous pour plus d’informations.

Prix : 512187 euros HAI euros ( 500 000 euros net vendeur – Hono charge acquéreur : 2.5%)
Les informations sur les risques auxquels ce bien est exposé sont disponibles sur le site Géorisques : www.georisques.gouv.fr (2.44 % honoraires TTC à la charge de l’acquéreur.)

Diagnostic de Performance Energétique

ConsommationNCkWh/m².an
EmissionsNCkgCO2/m².an
Logement très performant
A
B
C
D
E
F
G
Logement extrêmement consommateur d’énergie
EmissionsNCkgCO2/m².an
Peu d’émissions de CO2
A
B
C
D
E
F
G
Emissions de CO2 très importantes

Voir informations complémentaires

  • Code postal : 56340
  • Surface terrain (en m²) : 509
  • Bien en copropriété : Non
  • Prix de vente honoraires TTC inclus (en euros) : 512187
  • Prix de vente honoraires TTC exclus (en euros) : 500000
  • Honoraires à la charge de l'acquéreur (en %) : 2.44
  • Autre :

Propriétés similaires

Agence Des Druides Vente Maison Sur Carnac Icon Logo 1

Agence des Druides